Používame cookies na optimalizáciu našich webových stránok a našich služieb. Ďalšie informácie o cookies nájdete tu.

Nastavenie


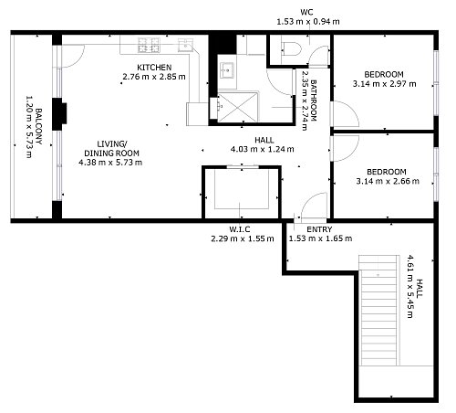
Na predaj NOVO ZREKONŠTRUOVANÝ, KLIMATIZOVANÝ a s NÁBYTKOM, 3 izbový byt (70m2) - PRAŽSKÝ TYP - ŠATNÍK a Veľká LODŽIA, VÝHĽAD, KUMBÁL, PIVNICA, Dvorkinova, Furča - Sídlisko Dargovských hrdinov, Košice

 

 

 

 

 

 

 

 

 

 

 

 

 

 

 

 

Na predaj NOVO ZREKONŠTRUOVANÝ, KLIMATIZOVANÝ a s NÁBYTKOM, 3 izbový byt (70m2) - PRAŽSKÝ TYP - ŠATNÍK a Veľká LODŽIA, VÝHĽAD, KUMBÁL, PIVNICA, Dvorkinova, Furča - Sídlisko Dargovských hrdinov, Košice

Popis nehnuteľnosti

Ponúkame Vám na predaj SLNEČNÝ, moderne a NOVO kompletne ZREKONŠTRUOVANÝ, KLIMATIZOVANÝ a kompletne vybavený NÁBYTKOM (stačí si doniesť len OSOBNÉ VECI a BÝVATE), 3 izbový byt (70m2), PRAŽSKÝ TYP (všetky PRIEČKY v byte dispozične ZMENITEĽNÉ), so samostatným ŠATNÍKOM, s PREKRÁSNYM panoramatickým VÝHĽADOM z veľkej LODŽIE (cez OBE izby) na sídlisko PANORÁMA a okolie, so šikovným KUMBÁLOM na chodbe a PIVNICOU v suteréne, v zrekonštruovanom a ZATEPLENOM, bytovom dome s novým, TICHÝM výťahom, s BEZPROBLÉMOVÝM a rýchlym PRÍSTUPOM do CENTRA mesta, Dvorkinova, Furča - Sídlisko Dargovských hrdinov, Košice

 

POZRITE SI 3D OBHLIADKU TOHTO BYTU Z POHODLIA VÁŠHO DOMOVA SKOPÍROVANÍM TOHTO LINKU: https://my.matterport.com/show/?m=vCW4JbcR2hC

 

STLAČTE "PLAY" vľavo dole na tomto LINKu a POZRITE SI VIDEO TOHTO BYTU Z POHODLIA VÁŠHO DOMOVA SKOPÍROVANÍM TOHTO LINKU: https://my.matterport.com/show/?m=vCW4JbcR2hC

 

BYT:

 

ROZSAH REKONŠTRUKCIE:

VYBAVENIE BYTU vrátane kompletného jeho vybavenia NÁBYTKOM a spotrebičmi:

BYTOVÝ DOM:

LOKALITA:

OBČIANSKA VYBAVENOSŤ:

Zavolajte mi a ja Vám ho rád osobne ukážem.

 

3D scan

CENA ZA NEHNUTEĽNOSŤ

 

 

 

 219.800€

Peter Badida

Realitám sa venujem už od roku 2000 a za ten čas som pochopil jednu zásadnú vec – nie som len maklér, som partner. Partner, ktorý s vami dýcha pri každom rozhodnutí spojenom s predajom alebo kúpou nehnuteľnosti. Medzi mnou a mojimi klientmi je vzájomná dôvera a absolútne nasadenie. Keď predávam vašu nehnuteľnosť, robím pre to maximum – akoby bola moja vlastná.

Verím, že dokonalosť spočíva v detailoch. Preto každý deň zdokonaľujem svoje realitné remeslo, krok za krokom. Moja práca nie je len o predaji – je o správnej stratégii, férových riešeniach a výsledku, s ktorým sú spokojné obe strany. WIN – WIN stratégia je základom môjho prístupu.

Spojením dlhoročných skúseností, moderných technológií a profesionálneho marketingu dokážem predať nehnuteľnosti nielen rýchlo, ale aj za čo najlepšiu cenu. Využívam umelú inteligenciu, cielenú Google reklamu, profesionálne fotografie, videoprehliadky, virtuálne prehliadky, home staging, vizualizácie, vlastnú webstránku nehnuteľnosti a silný online marketing. To všetko preto, aby som vám priniesol najvýhodnejší predaj.

Realitný maklér som sa nenaučil byť – ja som sa ním narodil. A ak chcete predať alebo kúpiť nehnuteľnosť s maximálnym výsledkom, som tu pre vás.


Peter Badida

Kontaktný formulár

Stiahnuť PDF